Churtonpark

powered by Open2view.com
SOLD

Wellington
3
2
N/A
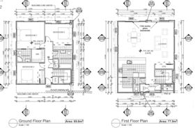
147sqm
N/Asqm
Wellington
proudly marketed by
Redcoats Limited Licensed REAA 2008
BRAND NEW STUNNING SPACIOUS TOWNHOUSES
Priced from $835,000. Four Brand New spacious (from 148sqm) Townhouses on offer. You'll love being in a new home - warm, quiet and dry. All enjoy decent west facing sun and views! Developed by Prime Properties, Built by EPIC Homes and designed by architectural experts NSPIRE. Each Home is Priced: Home on lot 4 - $850,000 SOLD Home on lot 5 - $835,000 SOLD Home on lot 6 - $835,000 (under offer) Home on lot 7 - $850,000 SOLD Features include: •Floor Area from 148sqm, Huge compared to other options. •Three bedrooms •Two bathrooms •Free Hold Titles. No Body Corporate. •Stone kitchen benchtop •Two off street car parks •Secure now with a 10% deposit and settle upon completion. •Expected completion August 2020 For more information and an appointment to view contact Harry Eggers on 021 777 806 today.
Question
Please leave this field blank:
Upload by David Garratt
Wellington Central/North