Churtonpark

powered by Open2view.com
SOLD

Wellington
4
3
N/A
372sqm
1279sqm
Wellington
Auction
Wednesday 23rd September - 1:00PM
Ray White Johnsonville, 20 Moorefield Road
proudly marketed by
Aaron Burke
Philip Reeve
Leaders Real Estate (1987) Ltd Licensed REA Act 2008
Views, Design Flair & Development Potential!
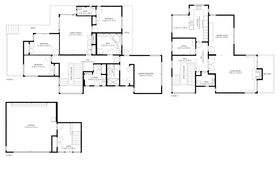
* 4 bedrooms + office * 3 bathrooms + 4 W/Cs * Lovely kitchen with casual dining * Large, open plan living/formal dining * Spacious family room (with kitchenette) * Sheltered courtyards + balconies * Gas heating/HW + double glazing * Double internal access garage + off street parking. Nestled in a private right-of-way with commanding views of Wellington lies 6 Ranikhet Way; a 372sqm, 1920s home extensively and architecturally remodeled in the 1990s. Stretching over 3 levels, this light, airy and bright home will delight. Step inside to a three-story atrium which draws you from the spacious foyer to the accommodation and living areas above. The middle level blends the original 1920s dwelling with the 1990s additions. You'll find 4 bedrooms, 3 bathrooms (2 being ensuites) plus a family room with a kitchenette - perfect for guests, teens or dependent relatives. Outdoor living is a sheltered courtyard - ideal for and entertaining. At the upper level you are immediately pulled to the spacious living room and balcony with commanding views from the Hutt Valley to Wellington City - simply breath-taking! The separate kitchen incorporates causal dining space plus there is also a home office and guest W/C. The secret of this home is the development potential. The driveway has been designed for the possibility to extend beyond the home for access to the potentially sub-dividable section below which also has superb harbour views. Full buyer investigation would be required to ascertain viability. RV: $1,220,000 Rates: $4,691.37 p.a.
Question
Please leave this field blank:
Upload by David Garratt
Wellington Central/North